Housing Info グランエステートの物件情報

チサンマンション三軒茶屋第2 1002号室

耐震基準適合物件!! 近隣には24時間営業のスーパーもあり、 日々の暮らしにも便利。
販売価格 4,990万円
部屋番号1002号室
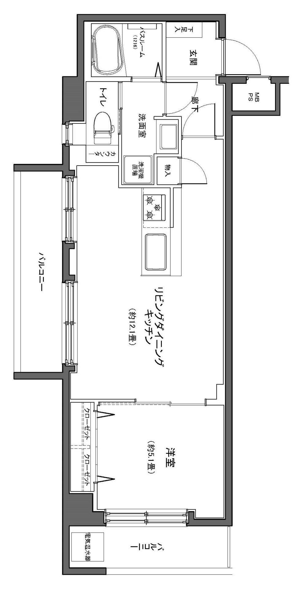
間取り 1LDK (41.10㎡)
築年数 1978年11月(築48年)
所在地 世田谷区上馬2-26-6
交 通 田園都市線「三軒茶屋」駅徒歩8分

リノベーション内容

●システムキッチン交換 ●ユニットバス交換 ●洗面化粧台交換 ●トイレ交換 ●全室クロス張替 ●全室フローリング張替 ●全室建具交換 ●フロアタイル張替 ●配管部分更新 ●全室照明設置 ●ハウスクリーニング ●電気温水器交換

物件のポイント!

エレベーター/モニター付きインターホン/防犯カメラ/食洗器付き/浴室内乾燥機付き/保温浴槽/人感センサー付き照明/家具付きマンション/エアコン1台付き

物件概要

  • 所在地 世田谷区上馬2-26-6
  • 階構造規模 鉄骨鉄筋コンクリート造12階建10階部分
  • 専有面積 41.10㎡
  • バルコニー面積 9.21㎡
  • 土地権利 所有権
  • 管理形態 全部委託
  • 管理方式 日勤
  • 管理費 月額9,600円
  • 修繕積立金 月額8,340円
  • 用途地域 第1種中高層住居専用地域・商業地域
  • 築年 1978年11月(築48年)
  • 総戸数 85戸
  • 施工会社 多田建物(株)
  • 分譲会社 (株)地産
  • 管理会社 (株)長谷工コミュニティ
  • 駐車場 月額30,000円
  • 駐輪場 年額3,000円
  • バイク置き場 年額6,000円~9,000円
  • 小学区 三軒茶屋小学校
  • 中学区 駒沢中学校