Housing Info グランエステートの物件情報

コスモ日吉 701号室

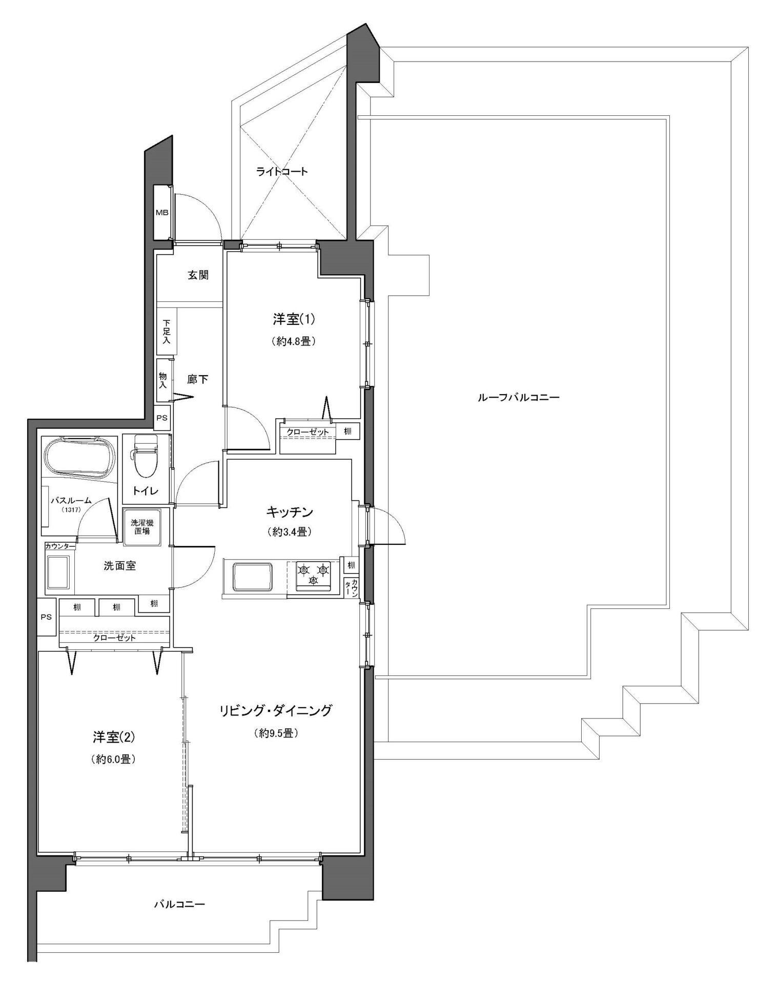
最上階3方角部屋住戸! 42.77㎡の大型ルーフバルコニー付き!! 徒歩5分圏内に商業施設、小学校、公園等 充実しております♪ 箕輪小学区!
販売価格 4,590万円
部屋番号701号室
間取り 2LDK (54.11㎡)
築年数 1986年7月(築40年)
所在地 横浜市港北区箕輪町2-10-20
交 通 東急東横線「日吉」駅徒歩15分

リノベーション内容

●給湯器交換 ●システムキッチン交換 ●ユニットバス交換 ●洗面化粧台交換 ●トイレ交換 ●全室クロス張替 ●全室フローリング張替 ●全室建具交換 ●フロアタイル張替 ●配管部分更新 ●全室照明設置 ●ハウスクリーニング

物件のポイント!

エレベーター/外壁タイル貼り/宅配ボックス/モニター付きインターホン/食洗器付き/浴室内乾燥機付き/追い炊き付き/保温浴槽/人感センサー付き照明/日当たり良好/眺望良好/全室収納/家具付きマンション/エアコン1台付き/住宅ローン減税適合物件/フラット35適合物件

物件概要

  • 所在地 横浜市港北区箕輪町2-10-20
  • 階構造規模 鉄筋コンクリート造7階建7階部分
  • 専有面積 54.11㎡
  • バルコニー面積 7.17㎡
  • 土地権利 所有権
  • 管理形態 全部委託
  • 管理方式 日勤
  • 管理費 月額10,900円
  • 修繕積立金 月額14470円
  • 用途地域 準工業地域
  • 築年 1986年7月(築40年)
  • 総戸数 80戸
  • 施工会社 (株)長谷川工務店
  • 分譲会社 (株)リクルートコスモス
  • 管理会社 (株)東急コミュニテイー
  • 駐車場 月額7,500円~15,000円
  • 駐輪場 月額100円※2台目以降加算有
  • バイク置き場 月額1,000円~1,500円
  • 小学区 箕輪小学校
  • 中学区 日吉台中学校